Ein zentrales Erdwärme­sonden­feld versorgt dezentrale Anschluss­nehmer über Kalte Nahwärme mit regenerativer Wärme und Kälte.

Auftraggeber: tewag GmbH

Bauherr: Entega AG

Standort: 64285 Darmstadt

Wärmequelle: Erdwärmesonden

Heizen: 500 MWh/a, 280 kW

Kühlen: Optional

Projektbeschreibung

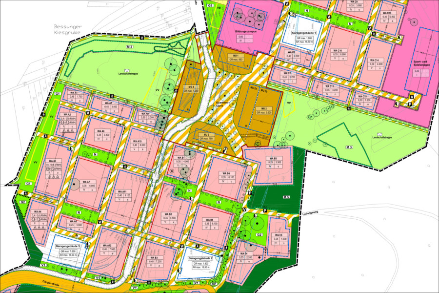
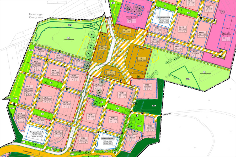
Darmstadt erhält einen neuen Stadtteil. Auf dem Gelände der früher militärisch genutzten Flächen Cambrai-Fritsch-Kaserne und Jefferson-Siedlung entsteht das Ludwigshöh­viertel. Die Fläche beträgt ca. 34 Hektar. Geplant ist ein modernes neues Quartier für Menschen aller Alters- und Einkommens­klassen. Über 3.000 Menschen sollen hier in den nächsten Jahren ein Zuhause finden. Geplant sind ca. 1.400 Wohnungen, hiervon 25% für Haushalte mit geringen Einkommen und 20% für Haushalte mit mittleren Einkommen, ein Bildungs­campus mit Grund­schule, drei KiTa-Einrichtungen und ein Familien­zentrum. Ein Großteil der Gebäude soll regenerativ mit Wärme versorgt werden.

Leistungen

Die Mitarbeiter der GeoAlto GmbH begleiteten das Vorhaben im Rahmen der geothermischen Standort­erkundung, als Fachplaner der Erdwärme­sonden­anlage sowie zur Optimierung der Rohrnetz­hydraulik.

Besonderheiten

Die Entega AG betreibt zur dezentralen Versorgung eines Teils der Wohnbebauung ein Kaltes Nahwärmenetz. Als Wärme­quelle wurde ein Erdwärme­sonden­feld im Bereich der Landschafts­treppe errichtet, welches in der ersten Ausbaustufe 64 Sonden á 130m Tiefe umfasst. Zur Regeneration des Unter­grundes soll zusätzlich Abwärme aus Gewerbe­kälte eines Nah­versorgers genutzt werden.


(© Bildmaterial & Textauszüge: Bauverein AG (Darmstadt), GeoAlto GmbH)

Zeitleiste

Machbarkeit und Erkundung

06/2018 - 10/2019
Machbar­keit und Erkundung(twg)

Konzeption und Genehmigung

12/2018 – 12/2021
Konzeption und Genehmigung(twg)

Detailplanung & Vergabe

10/2021 - 06/2022
Detail­planung & Vergabe

Realisierung

12/2022 - 05/2023
Realisierung

Monitoring & Betriebsmanagement

seit 12/2025
Monitoring & Betriebs­management

(twg: bearbeitet als Mitarbeiter der tewag GmbH)